ابعاد پلان راه پله و آسانسور

ابعاد پلان راه پله و آسانسور تحت تأثیر عوامل مختلفی قرار دارند که طراحان باید در مراحل اولیه طراحی معماری به آنها توجه کنند. مهمترین این عوامل عبارتند از:
- نوع کاربری ساختمان: ابعاد راه پله و آسانسور در یک ساختمان مسکونی با یک ساختمان اداری یا تجاری متفاوت است.
- تعداد طبقات: هر چه تعداد طبقات ساختمان بیشتر باشد، ابعاد راه پله و آسانسور نیز باید بزرگتر باشد.
- تعداد واحدها در هر طبقه: تعداد واحدها در هر طبقه نیز بر ابعاد راه پله و آسانسور تأثیر میگذارد.
- مقررات ملی ساختمان: در طراحی راه پله و آسانسور باید مقررات ملی ساختمان رعایت شود.
در نظر گرفتن این عوامل، ضمن رعایت استانداردها و مقررات، باعث بهینهسازی فضا، افزایش ایمنی و کارایی ساختمان خواهد شد.
ابعاد راه پله در ساختمانها باید مطابق با استانداردهای مقررات ملی ساختمان طراحی شود تا ایمنی و راحتی تردد کاربران تضمین گردد. برخی از مهمترین این استانداردها عبارتند از:
- عرض پله: حداقل عرض پله در ساختمانهای مسکونی 110 سانتیمتر و در ساختمانهای عمومی 140 سانتیمتر است.
- ارتفاع پله: ارتفاع هر پله نباید بیشتر از 18 سانتیمتر باشد.
- تعداد پله در هر بازو: تعداد پله در هر بازو نباید بیشتر از 12 پله باشد.
- شیب راه پله: شیب راه پله نباید بیشتر از 30 درجه باشد.
رعایت دقیق این استانداردها در طراحی و اجرای راه پله، نقش مؤثری در جلوگیری از حوادث، بهبود عبور و مرور و افزایش کارایی فضاهای عمومی و خصوصی ساختمان دارد.
ابعاد و استانداردهای دقیقتر در مراجع ملی مثل استاندارد ملی آسانسور (مانند استاندارد EN 81 در اروپا یا استانداردهای ملی ایران) موجود است و بسته به نوع ساختمان و کاربرد آسانسور ممکن است متفاوت باشد.
- ابعاد کابین: ابعاد کابین آسانسور بستگی به ظرفیت آن دارد. برای آسانسورهای مسکونی، ابعاد حداقل 110 در 140 سانتیمتر معمول است.
- ابعاد چاه آسانسور: ابعاد چاه آسانسور باید بزرگتر از ابعاد کابین باشد تا فضای کافی برای حرکت کابین و تجهیزات آن وجود داشته باشد.
- درب آسانسور: عرض درب آسانسور باید حداقل 80 سانتیمتر باشد.

استانداردهای ابعاد پلان آسانسور
ابعاد پلان آسانسور یکی از مهمترین مواردی است که در طراحی ساختمان باید به آن توجه ویژه داشت. این ابعاد، نه تنها بر راحتی و ایمنی ساکنین تأثیر میگذارند، بلکه در انتخاب نوع آسانسور و تجهیزات آن نیز نقش مهمی ایفا میکنند.مبحث پانزدهم مقررات ملی ساختمان:این مبحث به طور اختصاصی به الزامات طراحی و اجرای آسانسور میپردازد. در اینجا به برخی از مهمترین استانداردهای ابعاد پلان آسانسور که در این مبحث به آنها پرداخته شده است اشاره میکنیم:- ابعاد کابین آسانسور:
- حداقل ابعاد: ابعاد کابین بستگی به ظرفیت و نوع کاربری آن دارد. برای آسانسورهای مسکونی، ابعاد حداقل 110 در 140 سانتیمتر معمول است.
- ارتفاع: ارتفاع کابین آسانسور معمولاً حدود 220 سانتیمتر است.
- فضای حرکت: فضای داخل کابین باید به گونهای باشد که امکان حرکت آزادانه افراد، به خصوص افراد معلول و کم توان، فراهم شود.
- ابعاد چاه آسانسور:
- فضای کافی: ابعاد چاه آسانسور باید بزرگتر از ابعاد کابین باشد تا فضای کافی برای حرکت کابین و تجهیزات آن (مانند وزنههای تعادل، سیم بکسل و …) وجود داشته باشد.
- ابعاد استاندارد: ابعاد چاه آسانسور بستگی به ابعاد کابین و نوع آسانسور دارد. به عنوان مثال، برای یک آسانسور 6 نفره با ابعاد کابین 110 در 140 سانتیمتر، ابعاد چاه آسانسور حدود 160 در 180 سانتیمتر خواهد بود.
- درب آسانسور:
- حداقل عرض: عرض درب آسانسور باید حداقل 80 سانتیمتر باشد تا امکان ورود و خروج راحت افراد، به خصوص افراد معلول با ویلچر، فراهم شود.
- نوع درب: درب آسانسور میتواند از نوع لولایی، کشویی یا تلسکوپی باشد. انتخاب نوع درب بستگی به فضای موجود و نوع آسانسور دارد.
- فضای جلوی آسانسور:
- فضای کافی: در جلوی درب آسانسور در هر طبقه باید فضای کافی برای حرکت و تردد افراد وجود داشته باشد.
- ابعاد استاندارد: این فضا باید حداقل 150 سانتیمتر عمق و به اندازه عرض درب آسانسور عرض داشته باشد.
- ظرفیت آسانسور: ظرفیت آسانسور بر اساس تعداد نفرات یا وزن بار تعیین میشود. در انتخاب ظرفیت آسانسور باید به نوع کاربری ساختمان و تعداد ساکنین توجه شود.
- سرعت آسانسور: سرعت آسانسور بستگی به ارتفاع ساختمان و نوع آسانسور دارد.
- نوع آسانسور: انواع مختلفی از آسانسور وجود دارد، مانند آسانسورهای کششی، هیدرولیک و MRL. انتخاب نوع آسانسور بستگی به عوامل مختلفی مانند ارتفاع ساختمان، ظرفیت و بودجه دارد.

جدول ابعاد استاندارد آسانسور
| ظرفیت (نفر) | ابعاد کابین (سانتیمتر) | ابعاد چاه (سانتیمتر) |
|---|---|---|
| 4 | 110 × 140 | 160 × 180 |
| 6 | 110 × 140 | 180 × 200 |
| 8 | 130 × 160 | 200 × 220 |
| 10 | 150 × 180 | 220 × 240 |
طراحی پلان راه پله و آسانسور یکی از مهمترین بخشهای معماری ساختمان است که علاوه بر جنبههای فنی، باید به راحتی، ایمنی و زیبایی نیز توجه ویژهای شود. در ادامه به نکات کلیدی و ضروری در این زمینه میپردازیم.
- نورپردازی: راه پله و آسانسور باید دارای نورپردازی مناسب باشند تا از ایمنی و راحتی ساکنین اطمینان حاصل شود.
- تهویه: تهویه مناسب در راه پله و آسانسور بسیار مهم است، به خصوص در ساختمانهای بلند.
- دسترسی: راه پله و آسانسور باید به راحتی قابل دسترسی باشند.
- زیباییشناسی: در طراحی راه پله و آسانسور باید به زیباییشناسی آنها نیز توجه شود.
رعایت این نکات در طراحی پلان راه پله و آسانسور، تضمینکننده امنیت، کارایی و زیبایی فضای ساختمان خواهد بود و نقش مهمی در افزایش کیفیت زندگی ساکنین ایفا میکند.
ابعاد پلان راه پله و آسانسور در ساختمانهای مختلفابعاد پلان راه پله و آسانسور در ساختمانهای مختلف، بسته به نوع کاربری و تعداد طبقات آنها متفاوت است.- ساختمانهای مسکونی: در ساختمانهای مسکونی، ابعاد راه پله و آسانسور معمولاً کوچکتر از ساختمانهای عمومی است.
- ساختمانهای اداری: در ساختمانهای اداری، ابعاد راه پله و آسانسور باید بزرگتر باشد تا فضای کافی برای جابجایی کارمندان و مراجعین وجود داشته باشد.
- ساختمانهای تجاری: در ساختمانهای تجاری، ابعاد راه پله و آسانسور بستگی به نوع کسب و کار و تعداد مشتریان دارد.
رعایت این نکات در طراحی پلان راه پله و آسانسور، تضمینکننده امنیت، کارایی و زیبایی فضای ساختمان خواهد بود و نقش مهمی در افزایش کیفیت زندگی ساکنین ایفا میکند.
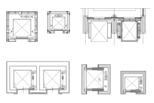
نمونههایی از پلان راه پله و آسانسوردر این بخش، نمونههایی از پلان راه پله و آسانسور در ساختمانهای مختلف را مشاهده میکنید.[در اینجا میتوانید تصاویری از پلانهای مختلف را قرار دهید.]جدول 1: ابعاد استاندارد راه پله در ساختمانهای مسکونی
| مورد | ابعاد (سانتیمتر) |
|---|---|
| حداقل عرض پله | 110 |
| حداکثر ارتفاع پله | 18 |
| حداکثر تعداد پله در هر بازو | 12 |
| حداکثر شیب راه پله | 30 درجه |
جدول 2: ابعاد استاندارد آسانسور در ساختمانهای مسکونی
| مورد | ابعاد (سانتیمتر) |
|---|---|
| حداقل ابعاد کابین | 110 در 140 |
| حداقل عرض درب | 80 |
تأثیر ابعاد پلان راه پله و آسانسور بر قیمت تمام شده ساختمان
ابعاد پلان راه پله و آسانسور بر قیمت تمام شده ساختمان تأثیر میگذارد. هر چه ابعاد این فضاها بزرگتر باشد، هزینه ساخت آنها نیز بیشتر خواهد بود. نکات مهم در انتخاب ابعاد پلان راه پله و آسانسور- بودجه: در انتخاب ابعاد پلان راه پله و آسانسور، بودجه خود را در نظر بگیرید.
- نیازها: ابعاد راه پله و آسانسور را بر اساس نیازهای خود انتخاب کنید.
- مشاوره با متخصص: قبل از نهایی کردن ابعاد پلان راه پله و آسانسور، با یک معمار یا مهندس مجرب مشورت کنید.
با رعایت این نکات میتوانید طراحی پلان راه پله و آسانسور را به گونهای انجام دهید که هم از لحاظ اقتصادی مقرونبهصرفه باشد و هم کیفیت و ایمنی ساختمان تضمین گردد.
ابعاد پلان راه پله و آسانسور و مقررات ملی ساختمان
در طراحی و اجرای راه پله و آسانسور، رعایت مقررات ملی ساختمان ایران الزامی است. این مقررات، استانداردهایی را برای ابعاد، ایمنی و کارایی این فضاها تعیین کرده تا حداکثر ایمنی و راحتی برای ساکنین فراهم شود.این مبحث به طور خاص به الزامات طراحی و اجرای راه پله میپردازد. مواردی که در این مبحث در نظر گرفته شدهاند، شامل موارد زیر است:- حداقل عرض راه پله: این مقدار به تعداد واحدها در هر طبقه و نوع کاربری ساختمان بستگی دارد. برای مثال، در ساختمانهای مسکونی با کمتر از 50 نفر ساکن، حداقل عرض مفید راه پله 200 سانتیمتر است.
- حداقل ابعاد پاگرد: پاگرد فضایی است که برای استراحت و تغییر جهت در راه پله در نظر گرفته میشود. ابعاد پاگرد باید به گونهای باشد که امکان عبور و مرور راحت افراد فراهم شود.
- حداکثر ارتفاع پله: حداکثر ارتفاع مجاز برای هر پله 19 سانتیمتر است.
- حداقل تعداد پله در هر بازو: تعداد پله در هر بازو نباید از 12 پله بیشتر باشد.
- شیب راه پله: شیب راه پله نباید از 30 درجه بیشتر باشد.
- نرده راه پله: نرده راه پله باید دارای ارتفاع و استحکام مناسب باشد تا از سقوط افراد جلوگیری کند.
رعایت این مقررات باعث افزایش ایمنی، سهولت دسترسی و استفاده بهتر از فضای ساختمان میشود و به حفظ سلامت و آسایش ساکنین کمک میکند.
مبحث پانزدهم مقررات ملی ساختمان:این مبحث به طور اختصاصی به الزامات طراحی و اجرای آسانسور میپردازد. برخی از مهمترین مواردی که در این مبحث به آنها پرداخته شده است عبارتند از:- ابعاد چاه آسانسور: ابعاد چاه آسانسور باید بزرگتر از ابعاد کابین باشد تا فضای کافی برای حرکت کابین و تجهیزات آن وجود داشته باشد.
- ابعاد کابین آسانسور: ابعاد کابین آسانسور بستگی به ظرفیت و نوع کاربری آن دارد. برای آسانسورهای مسکونی، ابعاد حداقل 110 در 140 سانتیمتر معمول است.
- درب آسانسور: عرض درب آسانسور باید حداقل 80 سانتیمتر باشد.
- سیستمهای ایمنی: آسانسور باید به سیستمهای ایمنی مانند ترمز اضطراری، سیستم نجات و آلارم مجهز باشد.
- نورپردازی و تهویه: کابین آسانسور باید دارای نورپردازی و تهویه مناسب باشد.
رعایت این الزامات موجب افزایش ایمنی، عملکرد بهینه و راحتی استفاده از آسانسورها در ساختمانها میشود.
نکات مهم دیگر:- در طراحی راه پله و آسانسور باید به مسائل دسترسی افراد معلول و کم توان نیز توجه شود.
- استفاده از مصالح با کیفیت و مقاوم در ساخت راه پله و آسانسور بسیار مهم است.
- بازرسی و نگهداری منظم راه پله و آسانسور برای حفظ ایمنی و کارایی آنها ضروری است.
اهمیت ایمنی در طراحی ابعاد پلان راه پله و آسانسورایمنی یکی از مهمترین جنبههای طراحی ابعاد پلان راه پله و آسانسور است. در طراحی این فضاها باید به نکات ایمنی مانند عرض پلهها، ارتفاع نردهها و وجود سیستمهای اطفاء حریق توجه شود.راه پله و آسانسور: نقش آنها در زیبایی ساختمانراه پله و آسانسور نه تنها از نظر کارایی و ایمنی مهم هستند، بلکه میتوانند به زیبایی ساختمان نیز کمک کنند. با انتخاب مصالح مناسب و طراحی خلاقانه، میتوان راه پله و آسانسور را به عنصری زیبا و جذاب در ساختمان تبدیل کرد. انواع راه پله و انواع آسانسور:- راه پله مستقیم: این نوع راه پله سادهترین و ارزانترین نوع راه پله است.
- راه پله دو طرفه: این نوع راه پله برای ساختمانهای با فضای محدود مناسب است.
- راه پله مارپیچ: این نوع راه پله ظاهری زیبا و مدرن دارد.
- آسانسور هیدرولیک: این نوع آسانسور برای ساختمانهای کم ارتفاع مناسب است.
- آسانسور کششی: این نوع آسانسور برای ساختمانهای بلند مناسب است.
- آسانسور MRL: این نوع آسانسور فضای کمتری اشغال میکند.
تأثیر هوش مصنوعی بر طراحی ابعاد پلان راه پله و آسانسور
هوش مصنوعی میتواند در طراحی ابعاد پلان راه پله و آسانسور نقش مهمی ایفا کند. با استفاده از الگوریتمهای هوشمند، میتوان ابعاد بهینه را برای این فضاها محاسبه کرد و طراحی را به گونهای انجام داد که حداکثر کارایی و ایمنی را داشته باشد.ابعاد پلان راه پله و آسانسور و بهینهسازی مصرف انرژی
در طراحی ابعاد پلان راه پله و آسانسور، باید به بهینهسازی مصرف انرژی نیز توجه شود. استفاده از مصالح با عایق بندی مناسب، سیستمهای نورپردازی کم مصرف و آسانسورهای با کارایی انرژی بالا میتواند به کاهش مصرف انرژی در ساختمان کمک کند. نتیجه گیریابعاد پلان راه پله و آسانسور از مهمترین عوامل در طراحی هر ساختمانی هستند. این ابعاد نه تنها بر زیبایی و کارایی ساختمان تأثیر میگذارند، بلکه نقش مهمی در ایمنی و راحتی ساکنین ایفا میکنند. در طراحی این فضاها باید به عوامل مختلفی مانند نوع کاربری ساختمان، تعداد طبقات، مقررات ملی ساختمان و نیازهای ساکنین توجه شود.تمکین فولاد آسانبر، بزرگترین وبسایت درباره آسانسور، از همراهی شما تا پایان این مقاله سپاسگزار است.تمکین فولاد آسانبر صمیمانه از حمایت شما تا پایان این مقاله تشکر میکند.سوالات متداول
ابعاد استاندارد راه پله در ساختمانهای مسکونی چیست؟
حداقل عرض پله در ساختمانهای مسکونی 110 سانتیمتر و حداکثر ارتفاع هر پله 18 سانتیمتر است.
چگونه میتوان راه پله و آسانسور را به عنصری زیبا در ساختمان تبدیل کرد؟
با انتخاب مصالح مناسب و طراحی خلاقانه، میتوان راه پله و آسانسور را به عنصری زیبا و جذاب در ساختمان تبدیل کرد.
هوش مصنوعی چگونه میتواند در طراحی ابعاد پلان راه پله و آسانسور مفید باشد؟
هوش مصنوعی میتواند با استفاده از الگوریتمهای هوشمند، ابعاد بهینه را برای این فضاها محاسبه کند و طراحی را به گونهای انجام دهد که حداکثر کارایی و ایمنی را داشته باشد.
چگونه میتوان مصرف انرژی را در راه پله و آسانسور بهینه کرد؟
استفاده از مصالح با عایق بندی مناسب، سیستمهای نورپردازی کم مصرف و آسانسورهای با کارایی انرژی بالا میتواند به کاهش مصرف انرژی در ساختمان کمک کند.
چرا ایمنی در طراحی ابعاد پلان راه پله و آسانسور اهمیت دارد؟
ایمنی یکی از مهمترین جنبههای طراحی ابعاد پلان راه پله و آسانسور است. در طراحی این فضاها باید به نکات ایمنی مانند عرض پلهها، ارتفاع نردهها و وجود سیستمهای اطفاء حریق توجه شود.


نظرات کاربران